Jak stworzyć rzut mieszkania online?

28 stycznia 2021

Zdjecie: Jak stworzyć rzut mieszkania online?
Aplikacje pozwalające stworzyć rzut nieruchomości online ułatwiają wizualizację nieruchomości i pomagają nam zaprojektować optymalny podział naszego mieszkania. Decydując się na zakup nieruchomości powinniśmy wiedzieć jaki jest rozkład poszczególnych pomieszczeń i układ całej nieruchomości. Zatem kiedy pojawia się potrzeba stworzenia rzutu mieszkania i w jaki sposób powinniśmy się za to zabrać? Są to najczęstsze pytania zadawane przez:
  • właścicieli nieruchomości,
  • osoby kupujące wymarzone mieszkanie
  • i również przez pośredników nieruchomości.
To właśnie oni mają kontakt z nieruchomościami oraz ofertami dostępnymi na portalach nieruchomości. Graficzne przedstawienie rozkładu nieruchomości jest nieocenioną pomocą ułatwiającą nam zapamiętanie poszczególnych pomieszczeń. Tworzymy sobie również możliwość zmiany aranżacji dostępnej powierzchni. Kupując meble możemy lepiej wyobrazić sobie jak zagospodarowana zostanie dostępna przestrzeń. kiedy potrzebujemy program do rysowania rzutów mieszkań? To właśnie programy ułatwiające tworzenie rzutów mieszkań online mogą nam oszczędzić dodatkowy czas na aranżację i zmianę powierzchni naszej nieruchomości. Natomiast rzuty zamieszczane w ogłoszeniach nieruchomości na portalach ułatwiają kupującym i najemcom poruszanie się po nieruchomości w trakcie oglądania zdjęć. Dlatego właśnie każdy właściciel sprzedający swoją nieruchomość i pośrednik nieruchomości powinien w pierwszej kolejności zadbać o czytelność swojej oferty dodając do niej poglądowy bądź techniczny rzut nieruchomości. [toc]

Co powinien mieć dobry program do rzutów mieszkań?

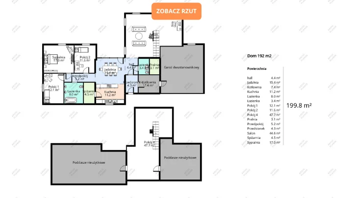
Przede wszystkim powinien być łatwo dostępny i prosty w obsłudze. Rzuty tworzone na własne potrzeby i potrzeby ogłoszeń nieruchomości powinny być przejrzyste i poglądowe. To znaczy, że powinny przedstawiać rozkład poszczególnych pomieszczeń i obrys całej nieruchomości.  Specjalistyczne rzuty przygotowane przez architektów wymagają znajomości programów, których obsługa wymaga praktyki i jest czasochłonna dla niedoświadczonej osoby. Tego typu oprogramowanie wymaga ukończenia specjalistycznych kursów i wielu godzin praktyki. My skupimy się na tych narzędziach, które dostępne "od ręki" i których obsługa zajmie nam mniej niż 30 minut :). Na poniższym rzucie przedstawiłem plan mieszkania narysowany w programie, z którego w swojej pracy pośrednika nieruchomości korzystam na co dzień. Po kliknięciu w poniższy rzut zostaniesz przeniesiony do tego konkretnego przykładu nieruchomości, który specjalnie narysowałem na potrzeby tego artykułu. Jeśli chcesz poprzestawiać meble, dodać czy usunąć ściany wystarczy, że klikniesz w poniższy obrazek: plan mieszkania Dlatego właśnie jeżeli decydujemy się samemu stworzyć poglądowy rzut techniczny naszej nieruchomości powinniśmy szukać prostych  i łatwo dostępnych rozwiązań dla użytku niekomercyjnego. plan mieszkania rysunek techniczny

Rzuty mieszkań - kiedy ich potrzebujemy?

Na wstępie wspomniałem, że rzuty mieszkań są dla nas obszarem roboczym wszystkich adaptacji oraz zmian w naszej nieruchomości, bądź mieszkaniu, które za chwilę kupimy. Każdy deweloper w swojej ofercie ma do dyspozycji rzuty mieszkań wraz z wymiarami. Dzięki czemu możemy wstępnie zaplanować finalny rozkład całej nieruchomości. Kiedy jeszcze przyda się rzut mieszkania? Kiedy chcemy:
  • zaplanować rozmieszczenie mebli, elementów wyposażenia
  • wraz z rozprowadzeniem punktów świetlnych.
  • Przygotowany rzut mieszkania ułatwia również zaplanowanie zabudowy kuchni wraz z rozmieszczeniem sprzętu AGD.
umeblowany rzut mieszkania Gdzie jeszcze rzuty mieszkań odgrywają jedną z kluczowych ról dzięki swojej specyfice? Tworząc ofertę nieruchomości mamy dwie możliwości, żeby przykuć uwagę potencjalnie zainteresowanych klientów, którzy odwiedzili nasze ogłoszenie. Pierwszą możliwością są dobrze przygotowane zdjęcia, które zawsze zatrzymają naszą uwagę na chwilę. Druga możliwość, żeby rozbudzić ciekawość i zachęcić do dalszego oglądania przygotowanej oferty jest związana z rzutem nieruchomościJeżeli nie wiemy jaki jest dokładny rozkład nieruchomości, możemy mieć problem z odnalezieniem się w samych zdjęciach - jeśli nie zostały przygotowane po kolei. poziomy rzut mieszkania Dokładnie proces tworzenia ogłoszenia nieruchomości przygotowałem w poniższym artykule: jak przygotować opis nieruchomości.

Techniczny rzut mieszkania

Rzuty nieruchomości przydają się jeśli potrzebujemy przygotować dokładne wymiary każdej ściany oraz mierzyć odległości sąsiadujących ścian. techniczny rzut mieszkania Co możemy sprawdzić i znaleźć na technicznym rzucie nieruchomości:
  • Okna
Możemy znaleźć oznaczenie okien i rozróżnić okna dwuskrzydłowe, jedno skrzydłowe okna połaciowe na poddaszu. Dodatkowo na technicznym rzucie mieszkania możemy zobaczyć jakie są wymiary poszczególnych okien. Co może być pomocne przy wybieraniu karniszy. Oczywiście powinniśmy i tak na miejscu w mieszkaniu dokonać dokładnego pomiaru.
  • Drzwi
Znajdziemy wejście do nieruchomości oraz dostępne rodzaje drzwi wejściowych i wyjściowych. Rozróżnimy drzwi balkonowe, drzwi wejściowe, bramę garażową.
  • Schody i poziomy nieruchomości
Zlokalizujemy schody i tym samym rozróżnimy przejście między dostępnymi poziomami nieruchomości.
  • Ściany nośne i działowe
Rozróżnimy ściany nośne od ścian działowych. Dzięki czemu możemy zaplanować, które ściany można wyburzyć, a które muszą zostać nietknięte.
  • Pion wentylacyjny, pion kanalizacyjny 
Wiedza o rozmieszczeniu określonych pionów w mieszkaniu jest kluczowa do niezbędnych zmian lokatorskich związanych z łazienką, toaletą, kuchnią.
  • Poddasze użytkowe/nieużytkowe
Na technicznym rzucie nieruchomości możemy dokładnie zauważyć, od którego momentu zaczyna się powierzchnia użytkowa oraz gdzie wysokość pomieszczenia jest mniejsza niż 2,5 m.
  • Instalacja elektryczna/sanitarna
Mając do dyspozycji techniczny rysunek nieruchomości możemy dokładnie zorientować się jak rozprowadzona jest instalacja elektryczna w poszczególnych pomieszczeniach. Ta wiedza może być przydatna przy wykonywaniu otworów w ścianie.

Rzut mieszkania z wymiarami

rzut mieszkania z wymiarami Rzut mieszkania z wymiarami jest niezbędny do prawidłowego wyposażenia naszej nieruchomości w meble, zabudowę kuchni oraz białą armaturę w łazience. Wymiary są również istotne przy planowaniu punktów świetlnych, wieszania obrazów czy też montażu schodów. W zasadzie na każdym etapie naszego życia w mieszkaniu jeżeli chcemy wprowadzić pewne zmiany zawsze sięgamy po miarkę, żeby przygotować niezbędne wymiary konkretnego pomieszczenia i poszczególnych ścian.

Rzut 2D czy 3D mieszkania - którą opcję wybrać?

Nie każdy program oferuje funkcje rzutów mieszkań 3D, która czasami jest przydatna i niezbędna. W szczególności jeżeli zależy nam na sprawdzeniu (wyobrażeniu sobie) jak zmieni się wystrój naszego pomieszczenia / nieruchomości jeśli:
  • zmienimy kolor ściany, 
  • zmienimy rodzaj podłogi,
  • dodamy meble 
  • dodamy/usuniemy lub przesuniemy ścianę.
rzut 3d nieruchomości w rzeczywistości Rzuty 3D nieruchomości przede wszystkim przygotowane są przez architektów projektujących nową koncepcję aranżacji naszej czy też interesującej nas nieruchomości. To właśnie doświadczenie architekta i umiejętność obsługi zaawansowanego oprogramowania sprawia, że przygotowana wizualna koncepcja aranżacji powierzchni jest również podstawą projektu wykonawczego.  rzut 3d mieszkania Zyskujemy dzięki temu obraz podstawowych kosztów związanych z zakupem materiałów oraz na podstawie przygotowanego projektu otrzymamy również dokładny kosztorys prac remontowo /budowlanych od firmy wykończeniowej.  Powinniśmy również pamiętać, o tym że wiedza i doświadczenie architekta projektującego nową koncepcję aranżacji jest niezbędne. Niezależnie od tego jak dobrą wyobraźnią dysponujemy to właśnie doświadczenie architekta oraz znajomość aktualnych i dostępnych materiałów na rynku sprawia, że aranżacje 3D są ciekawe, funkcjonalne i przede wszystkim wykonalne w naszym budżecie.  Dla przykładu poniżej dwa różne przykłady aranżacji tej samej powierzchni: 2 projekt aranżacji mieszkania Dlatego jeżeli zastanawiasz się jak zrobić dobry projekt mieszkania, zdecydowanie z pomocą przyjdzie doświadczony architekt wystroju i aranżacji wnętrz. Jeżeli chcesz wyłącznie dokonać pewnych zmian wizualnych i budowlanych możesz wtedy posiłkować się prostszym rozwiązaniem. Poniżej ta sama przestrzeń nieruchomości w nieco innym wydaniu: 2 projekt 3d mieszkania Naszkicuj rozkład swojego mieszkania, wprowadź podstawowe zmiany i przekonaj się czy technicznie i wizualnie Twoje potrzeby zostaną spełnione. 

Rzut poziomy mieszkania

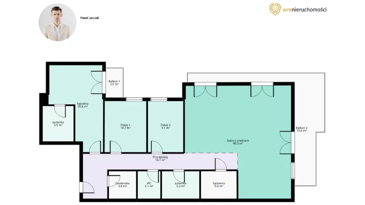
Kiedy powinniśmy zainteresować się programem dającym możliwość stworzenia prostego poziomego rzutu mieszkania? Przede wszystkim tworząc szkice nieruchomości, które zostaną użyte w ogłoszeniach nieruchomości na portalach. Klient zyskuje obraz całej nieruchomości dzięki czemu od razu wyobrazi lepiej sobie całą nieruchomość oraz lepiej ją zapamięta. poziomy rzut mieszkania Oferty nieruchomości, które nie zawierają rzutu mieszkania z wymiarami czy też z obliczoną powierzchnią każdego pomieszczenia krócej utrzymują uwagę klienta przeglądającego oferty. Wiąże się również z tym mniejsza liczba potencjalnych zapytań klientów zainteresowanych mieszkaniem. Jeżeli klient nie potrafi sobie wyobrazić czy oglądana nieruchomość spełni jego potrzeby związane z rozkładem pomieszczeń, może szybko stracić zainteresowanie oglądaną ofertą. Czy potrafisz wyobrazić sobie rozkład całego poniższego mieszkania wyłącznie po jednym zdjęciu? Jak myślisz jak duża jest ta nieruchomość? Ile ma pokoi? I czy jest pełno rozkładowym mieszkaniem? sypialnia w poziomym rzucie mieszkania Poniżej opisuję wyłącznie aplikacje, które mi osobiście przypadły do gustu w użytkowaniu. Kierowałem się przede wszystkim dostępnymi funkcjami, które mogłem przetestować zaraz po uruchomieniu aplikacji. Szukałem aplikacji, które umożliwiały prostą i intuicyjną edycję tworzonych rzutów.

Aplikacja Kazaplan Leroy Merlin

Aplikacja dostępna w ramach współpracy z Leroy Merin oferuje możliwość tworzenia rzutów w wersji 2D jak i również 3D. Jest bardzo rozbudowaną darmową aplikacją posiadającą bogatą bibliotekę mebli i elementów dekoracyjnych. Jest jedną z bardziej popularnych aplikacji na polskim rynku.

Sweet Home 3D

Rozbudowana aplikacja oferująca możliwość stworzenia zarówno rzutów 2D jak i 3D. Posiada bogatą bibliotekę obiektów. Dostępna jest wersji stacjonarnej po zainstalowaniu oprogramowania na komputerze.

Archiplaner.pl

Program dostępny w wersji online. Posiada bibliotekę gotowych szablonów umożliwiającą dalszą edycję i szybki eksport rzutu. Każdy utworzony roboczy rzut zapisuje się w koncie użytkownika. Prosty w obsłudze. https://archiplaner.pl/

Programy do rzutów 3D nieruchomości

Dwa programy do tworzenia rzutów 3D mieszkań online są moimi ulubionymi rozwiązaniami również przy tworzeniu koncepcji 3D mieszkania. Jednym z kluczowych czynników wyboru, którym się kierowałem opisując dwa powyższe programy do 3D rzutów nieruchomości to płynność działania. Każdy program, który ograniczał swobodę tworzenia rzutu poprzez powolne wczytywanie się obiektów czy też zacinanie się w trakcie tworzenia pomieszczeń był dla mnie mniej interesujący. Poniższa lista zawiera pozycje programów do rzutów, które miałem możliwość testować:
  • kazaplan
  • Sweet Home 3D

Darmowy program do rysowania rzutów

Aktualnie na rynku dostępna jest spora lista programów do rzutów, które w swojej podstawowej wersji bezpłatnie dają nam możliwość tworzenia oraz edytowania interesującej nas nieruchomości. Poniżej wymieniam te programy, które nie wymagają płatności do tego, aby je przetestować. Natomiast płatność może być konieczna w niektórych przypadkach, żeby wygenerować określone rzuty albo zyskać dostęp do wszystkich funkcji programu:
  • Archiplaner - program obsługujący rzuty 2D. Dostępny w polskiej wersji językowej. Posiada bibliotekę gotowych rzutów ułatwiających tworzenie i edycję nowych rysunków technicznych mieszkań.
  • Smartdraw - wystarczy, że założymy konto, aby mieć możliwość przetestowania działania programu, który oferuje rzuty 2D i 3D.
  • Homestyler - założenie konta daje nam dostęp do podstawowych funkcji programu, który obsługuje rzuty 2D i 3D.
  • Floorplanner - obsługuje rzuty 2D i 3D. Dostępny po zalogowaniu. Dostępny również w płatnej wersji.
  • Kazapan - całkowicie bezpłatny program oferujący rzuty poziome i 3D
  • Sweet Home 3D - całkowicie bezpłatny program, obsługujący rzuty 2D i 2D dostępny wyłącznie po zainstalowaniu na komputerze
  • Roomsketcher - w podstawowej wersji jest bezpłatny - oferuje rzuty 2D i 3D. Dodatkowo jest dostępny z poziomu aplikacji na telefonie.
darmowy program do rzutów mieszkań

Jaki program do tworzenia rzutów online wybrać?

Jeżeli chcesz przede wszystkim przygotować rzut 3D przedstawiający koncepcję aranżacji powierzchni to idealnym rozwiązaniem będzie jeden z wymienionych przeze mnie wyżej programów.  Jeżeli zależy Tobie na przedstawieniu poziomego rzutu mieszkania w celu przygotowania szczegółowych wymiarów każdego z pomieszczeń wówczas darmowe programy do rzutów mieszkań będą najlepszym rozwiązaniem dla Ciebie. Natomiast jeżeli chcesz przygotować rzut mieszkania, który dodatkowo wzbogaci Twoją ofertę nieruchomości - polecam wybrać jeden z dostępnych na rynku płatnych programów do tworzenia rzutów mieszkań. Przy wyborze kieruj się prostotą w obsłudze oraz możliwością urozmaicenia rzutu, żeby wyróżnił się na tle konkurencji.

Dziękuję za przeczytanie

Mam nadzieję, że przygotowany artykuł na blogu pomoże Tobie wybrać swój ulubiony program do rzutów mieszkań. Jeśli masz dodatkowe przemyślenia lub wnioski, napisz do mnie na formularz kontaktowy,  a z chęcią posłucham Twoich spostrzeżeń. Jeżeli chcesz być na bieżąco z nowymi treściami zapisz się na newsletter, który znajduje się pod poniższym artykułem.
  • Paweł